Our 2D Designs

Smart Planning Starts with Perfect 2D Design

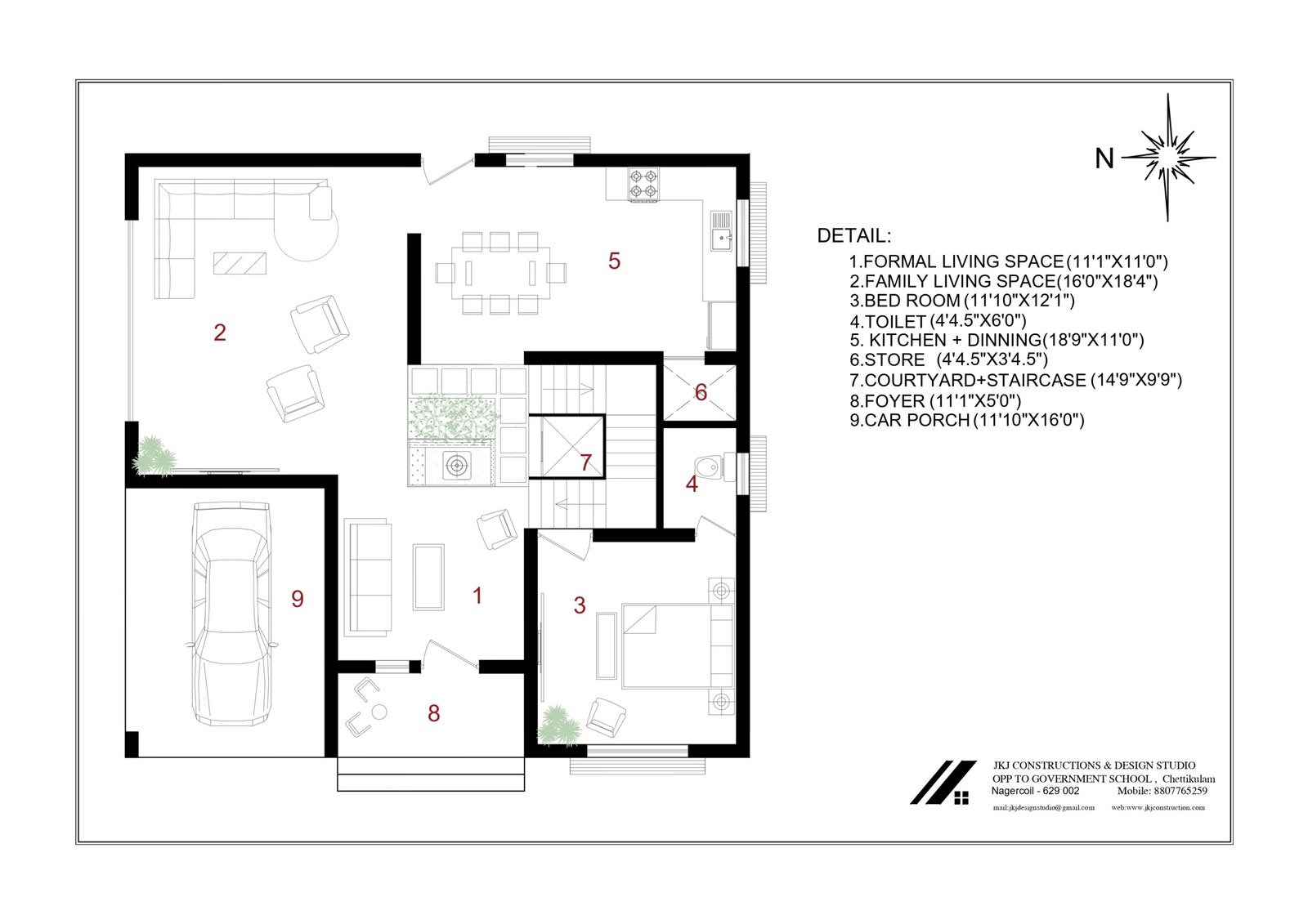
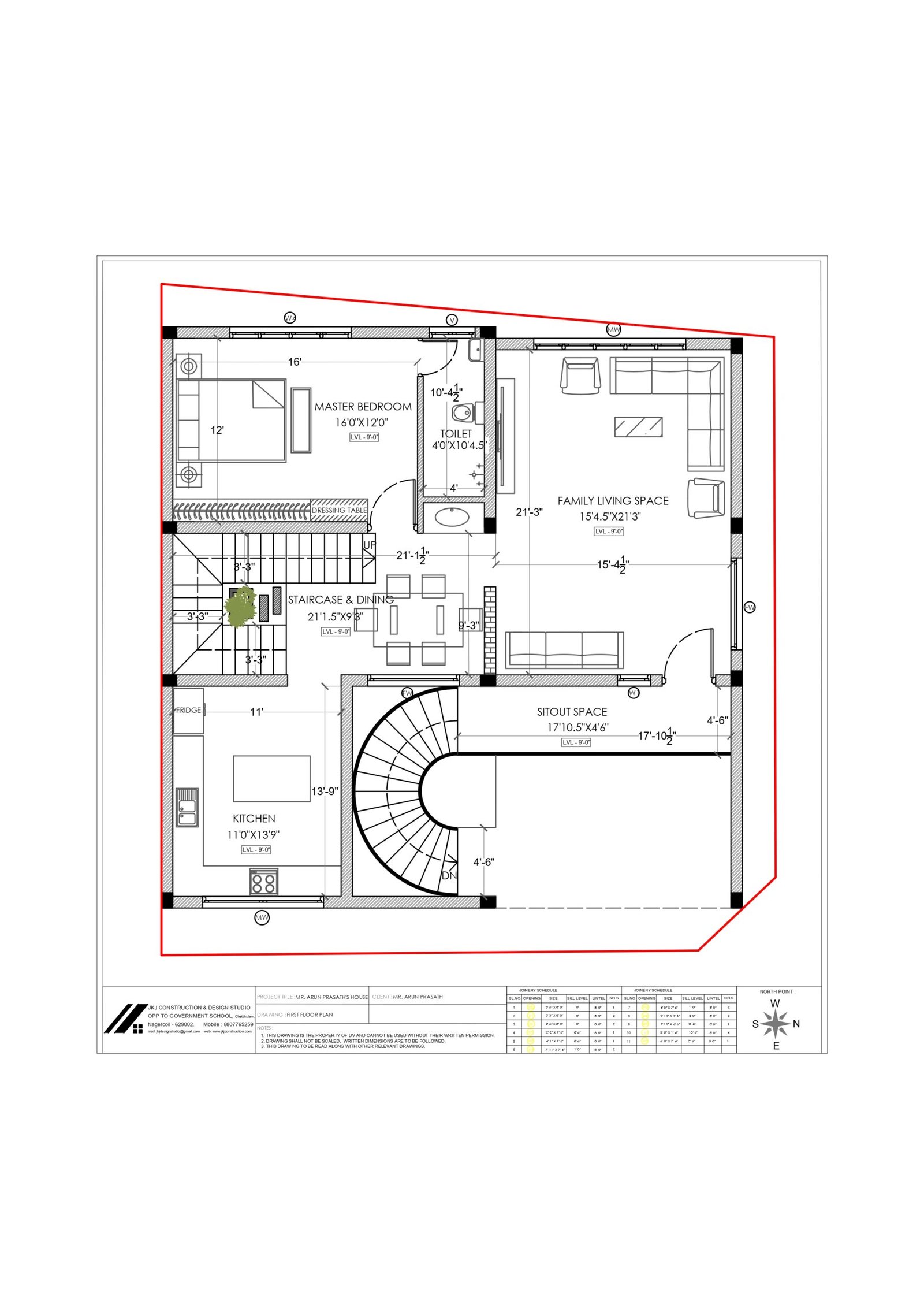
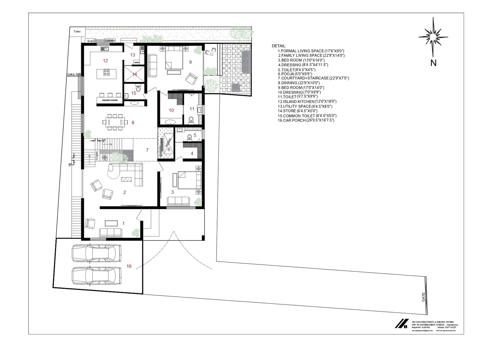
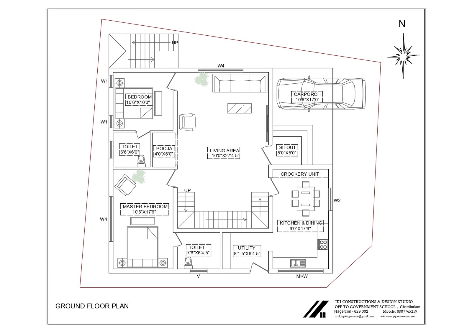
At JKJ Construction, we believe every successful construction project begins with a clear and precise plan. Our 2D design services provide the foundation for accurate execution, helping you visualize your dream space before construction begins.

From residential homes to commercial buildings, our detailed 2D drawings ensure clarity, efficiency, and zero guesswork throughout your project.

Why 2D Design is Important for Construction

A well-prepared 2D plan is more than just a drawing — it is the blueprint of your entire project. It helps you:

  •  Understand space planning and layout
  •  Avoid costly mistakes during construction
  •  Ensure proper room proportions and functionality
  •  Get faster approvals from authorities

Professionally created 2D plans improve accuracy and reduce rework, making construction smoother and more efficient

Our 2D Design Services in Nagercoil

As experienced building contractors in Nagercoil, we provide comprehensive 2D planning solutions for both residential and commercial projects.

Our 2D Design Includes:

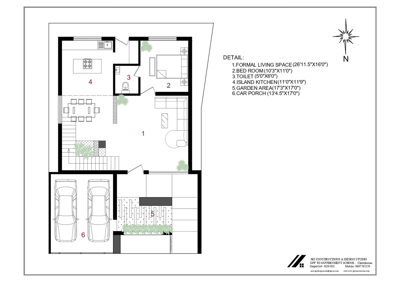
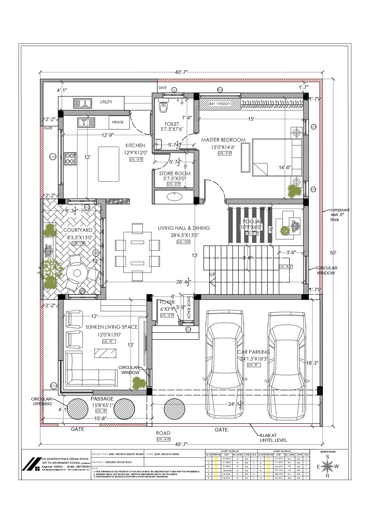
  • Detailed Floor Plans (All Floors)
  • Space & Furniture Layout Planning
  • Electrical & Plumbing Layout Drawings
  • Elevation & Section Drawings
  • Site Layout & Planning
  • Construction-Ready Working Drawings

Whether you’re planning house construction in Nagercoil or a commercial project, our designs ensure every detail is technically sound and practically feasible.

Designed by Experts, Built for Real Life

Our team of architects and designers works closely with you to understand your lifestyle, budget, and future needs.

We focus on:

  • Efficient space utilization
  • Natural ventilation and lighting
  • Vastu-friendly layouts (if required)
  • Functional and modern design concepts

This makes us a trusted choice for home construction services in Nagercoil and among the best builders in Nagercoil.

Our 2D Design Process

1. Requirement Discussion

We understand your ideas, plot size, budget, and preferences.

2. Concept Planning

Initial layout options are created based on your requirements.

3. Detailed Drawing Development

We understand your ideas, plot size, budget, and preferences.

4. Review & Modifications

Initial layout options are created based on your requirements.

5. Final Delivery

We understand your ideas, plot size, budget, and preferences.

Cost-Effective Planning for Every Budget

Our 2D design services are ideal for:
  • Low budget house construction in Nagercoil
  • Custom home projects
  • Commercial building planning

By finalizing your layout in the design stage, you can save significant costs during construction by avoiding design errors and changes later

Designed for Nagercoil Projects

We create 2D plans tailored for local conditions, ensuring compliance with construction standards and site requirements in Nagercoil and surrounding areas.

Let’s Turn Your Ideas into a Plan

Whether you’re planning a house construction in Nagercoil or a commercial project, our 2D designs give you the clarity to move forward with confidence.

👉 Choose JKJ Construction—where ideas become accurate, buildable designs.